PROJECTES D'ENGINYERIA I MAQUINÀRIA AGRÍCOLA

Disseny cinta transportadora

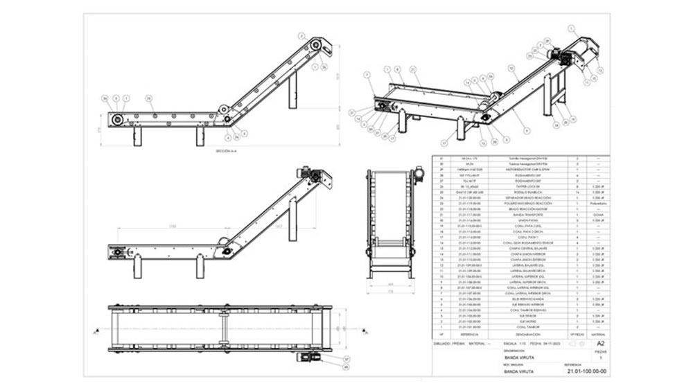
Disseny i dimensionament segons les especificacions del client d’una cinta transportadora per a la recollida i transport de viruta metàl·lica.

Realització del disseny 3D i dels plànols següents